
适用物料:原煤、大块物料
价格区间:5-100W
处理能力:50-460t/h
产品别名:波动振动筛,矿用波动筛
索要优惠报价
销售热线:
13782587121
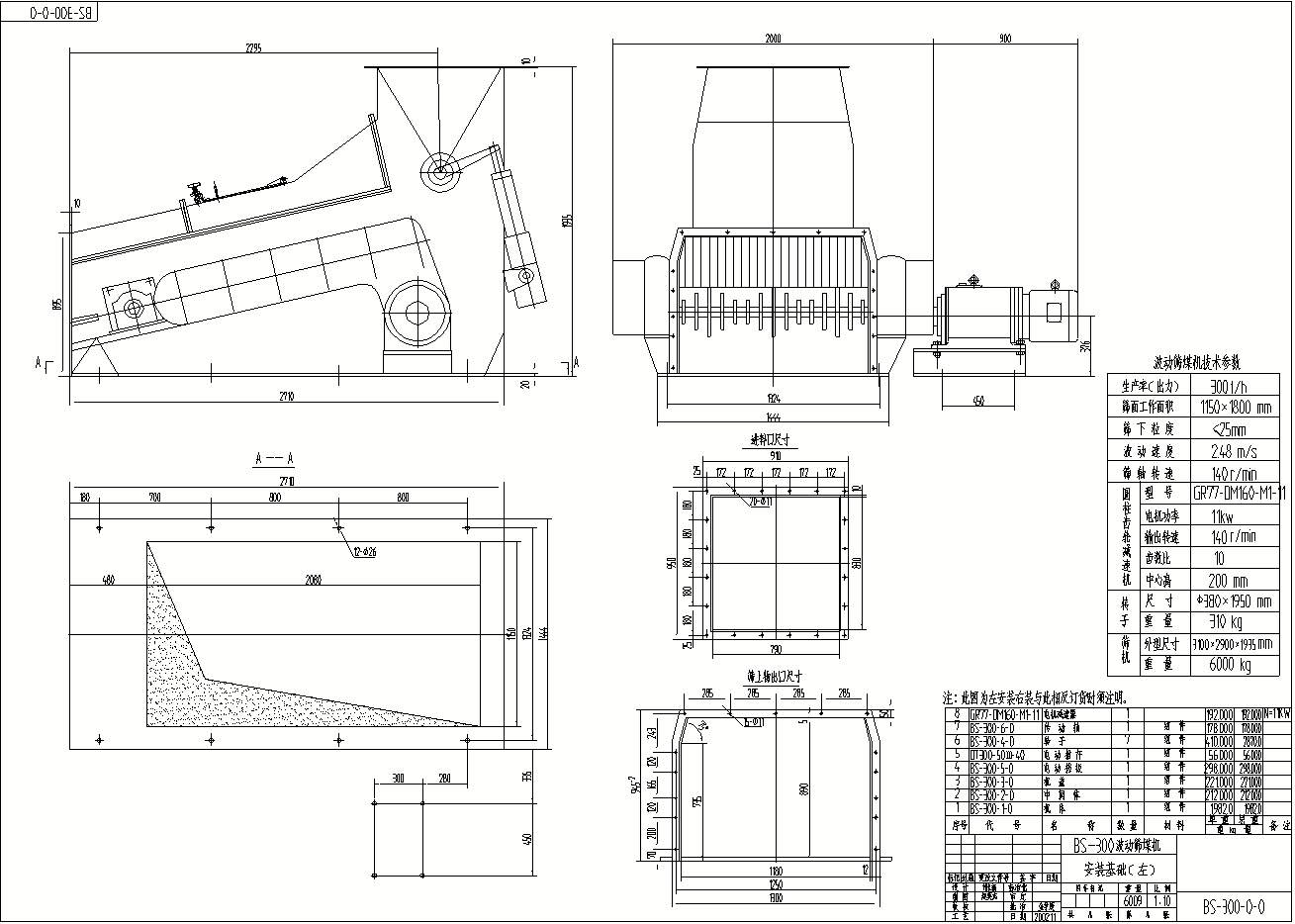
BS系列矿用波动筛是火力发电厂输煤系统的重要设备之一,在冶金、建材、化工、煤炭等系统也可广为利用。波动筛是由多根平行排列的滚轴组成,一般为6~10根滚轴,多达20根滚轴。滚轴上装有梅花形筛片。滚轴由电动机和减速器经链轮或齿轮带动滚轴旋转。转动方向与物料方向相同。
奥创机械波动筛出厂操作维护及检修知识简介:
一、工作时,首先开车,然后加入待筛分物料,否则会造成机器损伤,降低机器使用寿命。
二、在机器使用过程中,每次开机前必须检查机器内是否存有物料。
三、应先开机,后给料。停机时,应先停料,后关机。确保停前机器内没有物料。
四、禁止带负荷开机。
五、每三个月向轴承内部加注润滑油一次。
六、机器投入使用后三个月检修一次。
七、当筛片受损严重后,不能达到筛分目的时,应及时更换新的筛片
波动筛未来应用须知:
随着经济的快速发展,现代工业的大型化系统化,科技日益更新,人们对矿石的需求量也越来越大。但同时,由于矿产的过度开发使得岩石趋向低品质化。为此,针对这种易碎裂,抗压强度中等的矿材,需要一种适合的筛分机筛分。波动筛无论其功能还是工作的稳定性和效率,都是不二的选择。它将会是未来水泥矿石等矿业筛分体系的主流设备。在确保筛分效率和筛机工作性能的同时追求大型化和系列化也是一个重要的发展方向。
波动筛是由数片并列的特制桃形筛片组成的筛孔与几排转子(筛片与轴组成)形成筛面,各转子以同速、同向做周向旋转,在其作用下,筛面上的物料借助于桃形筛片交织回转,年夜块物料被拨腾起来,并经筛面到碎煤机破碎,小粒径物料则经筛孔直接落下,从而到达筛分的目的。为了获得轴向及纵向的波动,提高筛分效率,安装时统一轴上相邻的两筛片在径向错开一等位角(15°、30°或45°),相邻两轴上的筛片位置则以交织的形式排列。



|
型 号
|
BS-100
|
BS-200
|
BS-300
|
BS-500
|
BS-700
|
BS-1000
|
BS-1400
|
|
|
出 力(t/h)
|
100
|
200
|
300
|
500
|
700
|
1000
|
1400
|
|
|
轴 数
|
6
|
7
|
7
|
8
|
9
|
11
|
11
|
|
|
筛孔尺寸(mm)
|
40x 100
|
40x130
|
40x130
|
40x130
|
40x130
|
40x130
|
40x130
|
|
|
筛分效率(%)
|
90
|
90
|
90
|
90
|
90
|
90
|
90
|
|
|
筛轴转速(r/min)
|
140
|
140
|
140
|
140
|
140
|
140
|
140
|
|
|
电机功率(Kw)
|
3.0
|
5.5
|
7.5
|
11
|
11
|
15
|
22
|
|
|
电动推杆
|
型 号
|
手 动
|
DT300-50- 40
|
DT300-50- 40
|
DT500-50- 40
|
DT500-50- 40
|
DT500-50- 40
|
DT500-50- 40
|
|
功 率(Kw)
|
|
0.37
|
0.37
|
0.55
|
0.55
|
0.55
|
0.55
|
|
|
推 力(Kg)
|
|
300
|
300
|
500
|
500
|
500
|
500
|
|
|
行 程(mm)
|
|
500
|
500
|
500
|
500
|
500
|
500
|
|
|
外形尺寸(长x 宽x高)(mm)
|
2655x 2250x 1400
|
3100x 2550x 1935
|
3100x 2900x 1935
|
3400x 3000x 2050
|
3800x 3100x 2150
|
4200x 3100x 2250
|
4500x 3100x 2250
|
|
|
质 量(Kg)
|
3500
|
5100
|
6000
|
6500
|
7100
|
9820
|
11800
|
|
Copyright(C) 豫ICP备18015440号