
适用物料:煤炭、冶金、建筑、化工
价格区间:煤矿
处理能力:1-500t/h
产品别名:甲带式给煤机
索要优惠报价
销售热线:
13782587121
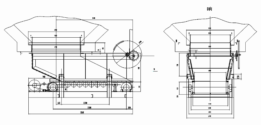
甲带给料机有连接段、导料槽、闸门机构、驱动电机、传动滚筒、改向滚筒、环形胶带和甲带等组成的,环形胶带被甲带包裹,环形胶带主要起牵引作用,甲带是承载运输物料的主要部件,这样甲带有效的保护了环形胶带不被坚硬物煤、杂物划伤、撕裂的危险。驱动装置由减速机经链轮带动驱动滚筒;驱动装置和甲带给料装置均安装在托架上,并可调整位置;为减少摩擦力,给料机导料槽横截面为倒梯形。
| 型号 | 功率 | 电压 | 调速方式 | 速度范围(m/s) | 给料范围(t/h|) | 重量(kg) |
| GLD800/5.5/S | 5 | AC380 AC660 AC1140 可选 | 手动 | 4~0.7 | 160~800 | 3700 |
| GLD800/5.5/B | 自动 | 42~0.7 | 480~800 | 3800 | ||
| GLD2000/5.5/S | 5/7.5① | 手动 | 6~0.1 | 400~2000 | 4200 | |
| GLD2000/5.5/B | 自动 | 2~0.1 | 1200~2000 | 4300 | ||
| GLD3300/7.5/S | 5 | 手动 | 2~0.1 | 660~3300 | 5200 | |
| GLD3300/7.5/B | 自动 | 6~0.1 | 1980~3300 | 5300 | ||
| GLD4400/11/S | 11 | 手动 | 3~1.5 | 880~4400 | 6200 | |
| GLD4400/11/B | 自动 | 9~1.5 | 2640~4400 | 6300 | ||
a、给料机如用于配料、定量给料时,为保证给料的均匀稳定,防止物料自流应水平安装,如进行一般物料连续给料,可下倾10°安装。对于粘性物料及含水量较大的物料可以下倾15°安装。
b、安装后的给料机应留有20mm的游动间隙,横向应水平,悬挂装置采用柔性连接。
c、空试前,应将全部螺栓坚固一次,尤其是振动电磁的地脚螺栓,连续运转3-5小时,应重新紧固一次。
d、试车时,两台振动电机必须向旋转。
e、给料时在运行过程中应经常检查振幅,电流及噪音的稳定性,发现异常应及时停车处理。
f、电磁轴承每2个月加注一次润滑油,高温季节应每月加注一次润滑油。
1、经常的维护和检修是延长机器使用寿命,确保正常工作的重要手段,用户应予以重视。对于润滑,应注意以下几点:
(1)本机采用稀油飞溅润滑,润滑油应根据使用地点、气温条件决定,一般采用齿轮油;
(2)应保证激振器中的稀油面高于油标高度(通过接头 弯管加注),每3-6个月必须更换一次,换油时应用洁净的汽油或煤油清洗油箱、轴承滚道及齿轮表面。
2、安全技术:
(1)本机操作人员,须经安全技术教育;
(2)运转时,严禁机边立人,用手触摸机体、调整、清整、清理或检修等;
(3)机器设备应接地,电线应可靠绝缘,并装在蛇皮管内,经常检查电机接线是否磨损和漏电。
Copyright(C) 豫ICP备18015440号